В зоопарке Николаева построят жирафник за пять миллионов гривен
- Новини Миколаєва
-
•
- Ольга Коваленко
-
•
-
15:59, 21 вересня, 2015
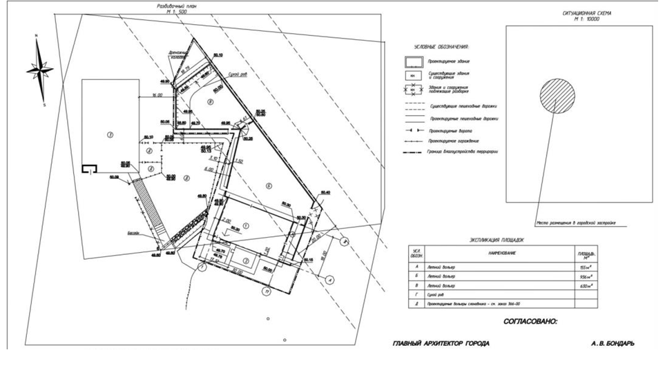
Коммунальное предприятие «Николаевский зоопарк» потратит почти пять миллионов гривен на возведение жирафника с летними вольерами. Строительные работы планируют завершить в 2016 году.
Об этом говорится в «Вестнике государственных закупок».
Тендер на строительство жирафника выиграло ООО «Николаевгорстрой». Договор стоимостью 4 миллиона 840 тысяч 458 гривен подписали с фирмой 19 сентября. На открытых торгах у нее было трое конкурентов: николаевское ООО «Ди Кор-Буд», херсонское частное предприятие «Юг-Тент» и николаевская фирма «Артиль-Буд», но все они указали большую стоимость услуг, нежели «Николаевгорстрой».
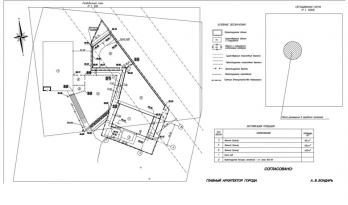
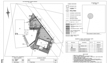
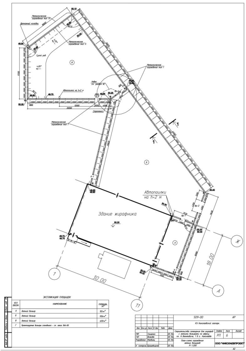
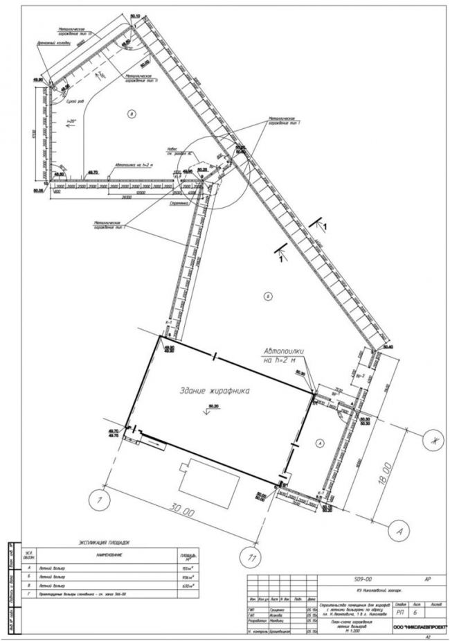
Согласно тендерной документации, подрядчик обязуется возвести двухэтажное здание ангарного типа, утеплить его, установить металлопластиковые окна. Зал обозрения площадью 3х18 м необходимо отделить от животных стеной с восьмиметровой стеклянной витриной. В технических условиях договора также отмечается, что необходимо построить три летних вольера для животных и установить между ними перегородки высотой в 7 метров. Общая площадь застройки составляет 585 м2.
Стоит отметить, что в мае 2015 года Николаевский зоопарк заключил с ООО «Николаевгорстрой» договор на реконструкцию слоновника стоимостью 2 миллиона 420 тысяч гривен. Строительные работы длятся уже 4 месяца. А в августе администрация зоопарка объявила конкурс на роспись внешней стены вольера для слонов.



