Строительство причала №8 в Николаевском морском порту досталось компании с уставным фондом в 1 тысячу
- Новини Миколаєва
-
•
- Дмитро Булаш
-
•
-
17:00, 09 грудня, 2017
Николаевский филиал Государственного предприятия «Администрация морских портов Украины» 7 декабря закончил проведение тендера на строительство причала №8 в Николаевском морском порту по улице Заводской, 23.
Победителем стала фирма «Гидрострой Украина», все данные опубликованы в системе Prozorro.
Ожидаемая стоимость работ изначально составляла: 317 миллионов 33 тысячи 236 гривен 67 копеек без НДС. «Гидрострой Украина» предложила сделать все работы за 316 миллионов 595 тысяч 833 гривен 33 копейки.
Данная компания зарегистрирована в Киеве на Елену Чарченко. При этом уставной капитал фирмы обозначен в 1 тысячу гривен.
В тендере принял участие и второй соискатель – николаевское ООО «Югтрансстрой».
В данный момент происходит процедура квалификации победителя тендера.
Квалификация победителя торгов должна быть осуществлена в течение 5 рабочих дней с момента объявления победителя. Если существуют объективные причины, по которым заказчику необходимо увеличить срок квалификации победителя, то подтверждение заявленных цен и самого тендерного предложения может быть увеличен до 20 календарных дней.
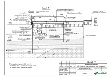
Отметим, что причал №8 разрушили еще во времена Второй мировой войны.
Проектируемый причал №8 является составной частью причального фронта второго грузового района. Причал ограничен с восточной стороны - причалом №9, с западной - причалом №7.
Год назад НикВести сообщали, что администрация Николаевского морского порта планирует реализацию амбициозного плана – строительства восьмого причала, который разрушили еще во времена Второй мировой войны.



